
| 分類 | オフィス |
|---|---|
| 行政区 | 長寧区 |
| 所在地 | 上海市遵義路 |
| 最寄り駅 | M2,15 婁山関路 徒步5分(地下通路直結) |
| 築年数 | 11年 |
| 駐車場 | RMB1600~2000元/台/月 |
| 引渡し基準 | 鉱物製システム天井、OAフロア、中央空調システム |
(日本語可)受付時間: 8:30 ~ 17:30
クリックして拡大して見ることができます






| 分類 | オフィス |
|---|---|
| 行政区 | 長寧区 |
| 所在地 | 上海市遵義路 |
| 最寄り駅 | M2,15 婁山関路 徒步5分(地下通路直結) |
| 築年数 | 11年 |
| 駐車場 | RMB1600~2000元/台/月 |
| 引渡し基準 | 鉱物製システム天井、OAフロア、中央空調システム |
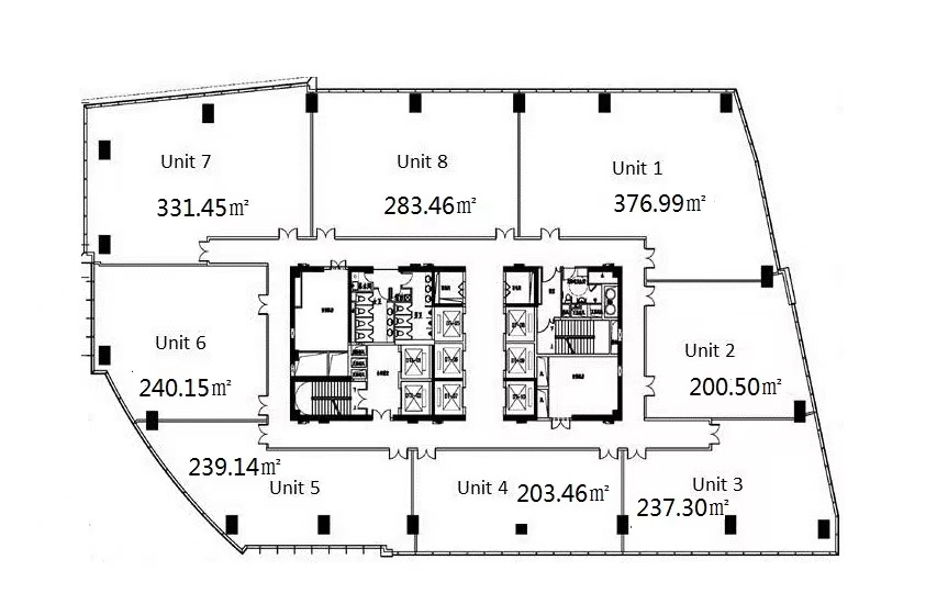
| 面積 | 賃料目安 | 管理费 | 規模 | 備考 |
|---|---|---|---|---|
| 200㎡~2115㎡ | 6.50元/㎡/日~7.50元/㎡/日 | 36.00/㎡/月 | 20階建て | - |
| 面積 | 200㎡~2115㎡ |
|---|---|
| 賃料目安 | 6.50元/㎡/日~7.50元/㎡/日 |
| 管理费 | 36.00/㎡/月 |
| 規模 | 20階建て |
| 備考 | - |
前ページに戻る
(日本語可)受付時間: 8:30 ~ 17:30

まずは、お気軽にご相談ください!
+86-21-6278-0077
(日本語可)受付時間: 8:30 ~ 17:30
