
| 分類 | 工場 |
|---|---|
| 地区 | 閔行区 |
| 所在地 | 上海市金辉路 |
| 最寄り駅 | M13 季乐路 徒步10分钟 |
| 築年数 | 6年 |
| 駐車場 | 有 |
| その他 | 罗森コンビニ、園区食堂 |
(日本語可)受付時間: 8:30 ~ 17:30
クリックして拡大して見ることができます







| 分類 | 工場 |
|---|---|
| 地区 | 閔行区 |
| 所在地 | 上海市金辉路 |
| 最寄り駅 | M13 季乐路 徒步10分钟 |
| 築年数 | 6年 |
| 駐車場 | 有 |
| その他 | 罗森コンビニ、園区食堂 |
| 面積 | 賃料目安 | 管理费 | 規模 | 備考 |
|---|---|---|---|---|
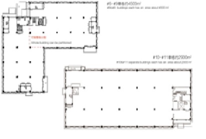
| 1,500~4,500㎡ | 2.50元/㎡/日 | 9.00元/㎡/月 | 3階建て | 160元/台/月 |
| 面積 | 1,500~4,500㎡ |
|---|---|
| 賃料目安 | 2.50元/㎡/日元/㎡/日 |
| 管理费 | 9.00元/㎡/月 |
| 規模 | 3階建て |
| 備考 | 160元/台/月 |
前ページに戻る
(日本語可)受付時間: 8:30 ~ 17:30

まずは、お気軽にご相談ください!
+86-21-6278-0077
(日本語可)受付時間: 8:30 ~ 17:30
